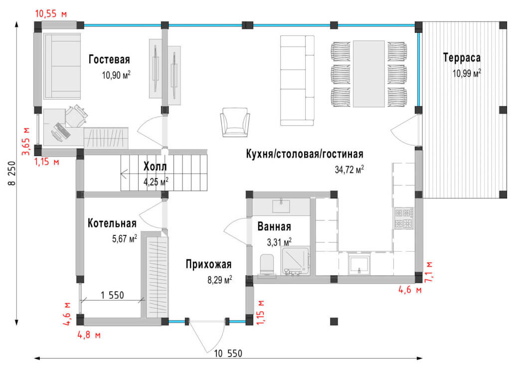
Флахау
Проект фахверкового дома





Флахау
Проект фахверкового дома
7-слойные сэндвич-панели, который надежно защищают от холода ветра, шума и исключают сквозняки:
Константин Серадзинов
Архитектор. Один из основателей фахверкового домостроения в России
Созвонимся или встретимся вживую:
7-слойные сэндвич-панели, который надежно защищают от холода ветра, шума и исключают сквозняки: